Government Information
Finding government materials
Search our collection of government materials via our library catalog (filter to government information for more precision), or browse research databases.
Government Information, part of Rare and Distinctive Collections, is a regional library of the Federal Depository Library Program as well as a Preservation Steward for U.S. Congressional publications (a partnership with GPO). We also serve as a depository of Colorado, United Nations and European Union information.
We’re here to help you find information from any level of government. Most government publications materials can be checked out (information about visiting and using our collections). We offer research guides, tours and in-person and virtual instruction. For more information or general inquiries, please contact us at rad@colorado.edu.
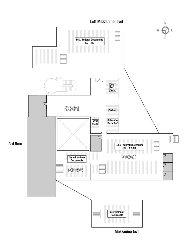
Government Information Stacks: Map of call numbers & sections
Featured resources
A comprehensive guide to election day resources from the Rare and Distinctive Collections' Government Information collection.
Our go-to source for Congressional hearings, debates, bills, executive orders and more
Free, openly available and official online repository for government documents
Government information librarians
Philip Wrede
Allan Van Hoye
Schedule a research consultation with Allan

